“Passion for People gaat opnieuw bouwen…”
De beslissing is genomen, de plannen worden verder uitgewerkt en de exacte kosten in kaart gebracht …
Het staat vast: Passion for People start een nieuwbouwproject in Muona, Malawi!
Na de succesvolle realisatie van vier verloskamers in 2017 – mede mogelijk gemaakt door de “Lions Land van Cuijk en Noord-Limburg” – legt Passion for People nu de laatste hand aan een meerjarenplan voor het bouwen van nieuwe pre- en post-natale zorg units. Uitvoering van dit plan zal de zorg voor moeder en kind in Trinity Hospital, Muona decennialang structureel waarborgen.
“Een grote droom komt uit,” aldus Hans Baltussen. Sinds zijn eerste bezoek in 2008 waren juist de afdelingen voor moeder- en kindzorg hem een doorn in het oog. Ondanks dat het ziekenhuis regelmatig erkenning ontvangt voor de hygiëne, waren de gebouwen waarin zwangere vrouwen en pasgeborenen werden opgevangen in zeer slechte staat. Niet door gebrek aan inzet of kennis, maar door de slechte bouwkundige omstandigheden was het onmogelijk om de zorg te bieden die moeder en kind verdienen.
Voor te vroeg geboren kinderen was de situatie al even schrijnend. Door gebrekkige isolatie konden de temperaturen in de zomer oplopen tot boven de 50 graden Celsius – een onacceptabele situatie, zowel voor patiënten als voor zorgpersoneel.



(foto’s: de huidige situatie)
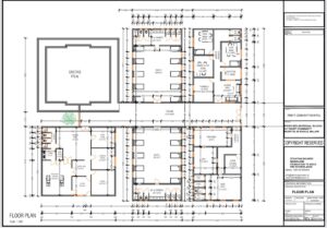
Vijf nieuwe units voor optimale zorg!
In samenwerking met de architect en het ziekenhuismanagement is een plan ontwikkeld voor de bouw van vijf nieuwe units, direct aangesloten op de bestaande verloskliniek. Deze opzet maakt het mogelijk om met een minimale bezetting optimale zorg, monitoring en begeleiding te bieden.
Unit 1 – Intake en observatie:
Een rustige, hygiënische omgeving waar zwangere vrouwen worden onderzocht en waar wordt bepaald of een natuurlijke bevalling mogelijk is of dat een keizersnede noodzakelijk is.
Unit 2 – Afdeling voor de aanstaande moeder:
Een afdeling voor de aanstaande moeder waar zij zich in prima hygiënisch omstandigheden en onder toezicht zich kan voorbereiden op de bevalling.
Unit 3 – Operatieafdeling:
Een moderne operatiekamer, voornamelijk ingericht voor keizersneden en andere noodzakelijke ingrepen.
Unit 4 – Nazorg voor moeder:
Een herstelafdeling waar moeders na de bevalling kunnen uitrusten en waar belangrijke medische controles plaatsvinden.
Unit 5 – Neonatale zorg:
Speciaal ingericht voor te vroeg geboren baby’s, met couveuses en continue begeleiding door verpleegkundigen, in nauwe betrokkenheid met de moeder.
Uw hulp is onmisbaar!





(foto’s: samen met onze collega’s en contactpersonen hebben wij middels een mooie samenwerking een prachtig bouwplan kunnen realiseren. Zie de video voor meer details!)
De noodzaak is groot en daarom willen wij zo snel mogelijk starten met de realisatie van het nieuwe Moeder en Kind gebouw. En voor de bouw van deze vijf units hebben wij uw (financiële) steun hard nodig!
Passion for People kan dit niet alleen.
Met uw bijdrage helpt u aanstaande moeders en hun kinderen in Munoa en omstreken. Mensen die – net als wij – recht hebben op een veilige en waardige start van het leven.
Samen met u zorgen wij ervoor dat de plek waar je geboren wordt, een plek is waar zorg, veiligheid en menselijkheid centraal staan. Ook, of misschien juist, in Muona, Malawi!
Hartelijk dank!
Frits Rasing
Voorzitter Passion for People.